Active Under Contract MLS# 25077976

1207 Washington Avenue, Staunton, IL 62088

Subdivision: N/A

List Price: $110,000

3

Bedrooms

2

Baths

1,782

Area (sq.ft)

$62

Cost/sq.ft

1 Story

Type

20

Days on Market
Call Agent

Description

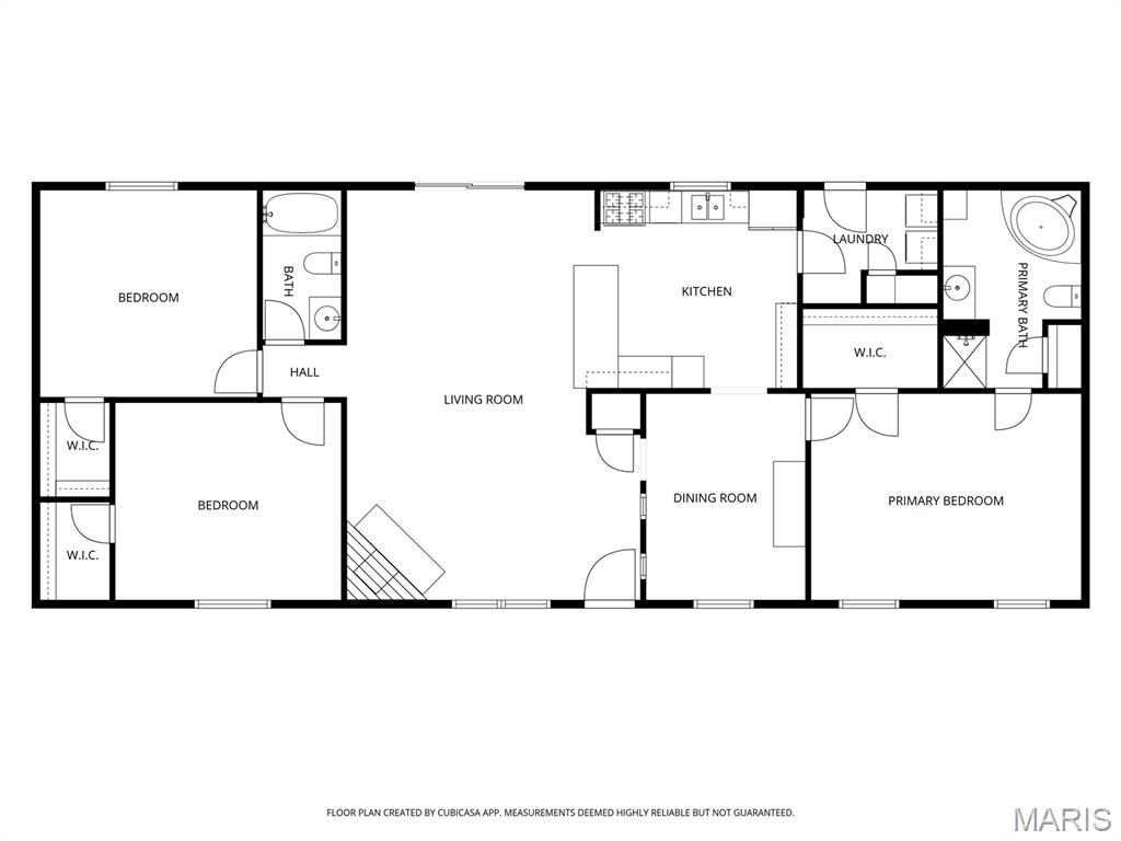
Spacious and well-maintained, this 3 bedroom, 2 full bath home sits on a corner lot and offers over 1,700 square feet of comfortable living space. Inside, you’ll find large rooms throughout, including a separate dining room and a welcoming living room with a gas fireplace. The kitchen features newer appliances, ample cabinet space, and all kitchen appliances are included. The washer & dryer also stay, along with the hutch in the office area. The primary suite provides great privacy with a walk-in closet and full bath. Off the back of the home, enjoy the peaceful screened-in porch, ideal for relaxing or entertaining. Major updates bring peace of mind: new roof (Fall 2024), new furnace (2024), AC approximately 5–6 years old, new main water line (2023), and water heater replaced in 2021. A detached 2-car garage offers excellent parking and storage. Cash or Conventional only.

Property Information

List Price $ 110,000
Original Price $ 110,000
Status Active Under Contract
MLS# 25077976
Bedrooms 3
Full baths 2
Half baths 0
Main Floor Full Baths 2
Sq. Ft. Above 1,782
Lot Size
Acres 0
Subdivision N/A
Municipality
School District STAUNTON DIST 6
County Madison-IL
Property Type Residential
Style 1 Story
Style Description
Transaction Type
Special Conditions Standard
Type
Building Exterior Amenities
Building Style Ranch
Ownership
Special Description Standard
Appliances Some Dishwasher,Dryer,Range Hood,Gas Range,Refrigerator,Washer

Additional Information

Elementary School STAUNTON DIST 6
Jr. High School STAUNTON DIST 6
Sr. High School Staunton
Association Fee None
Architecture Ranch
Construction Vinyl Siding
Garage Spaces 2
Carport Spaces 0
Basement Description Crawl Space
Fireplace Type Gas
Fireplace Location
Lot Dimensions 100x150
Special Areas
Cooling Central Air,Electric
Sewer Aerobic Septic Sewer
Heating Forced Air
Water Public
Heat Source
Kitchen
Appliances Dishwasher,Dryer,Range Hood,Gas Range,Refrigerator,Washer
Dining
Interior Decor
Property Tax $441

Map Location

Rooms Dimensions

Room Dimensions (sq.rt)
Living Room (Level-Main) 18 x 25
Kitchen (Level-Main) 12 x 13
Dining Room (Level-Main) 9 x 12
Laundry (Level-Main) 7 x 8
Primary Bedroom (Level-Main) 12 x 16
Primary Bathroom (Level-Main) 8 x 12
Bedroom (Level-Main) 12 x 13
Bedroom (Level-Main) 12 x 13
Bathroom (Level-Main) 4 x 9

Listing Courtesy of RE/MAX Alliance - [email protected]


Related Properties

$110,000

MLS# 25075441
Coming Soon

3 bds 2 ba 1,536 sqft $N/A per sqft 1 Story type

$110,000

MLS# 25080155
Coming Soon

0 bds N/A ba 0 sqft $N/A per sqft N/A type

$110,000

MLS# 25080569
Coming Soon

4 bds 3 ba 1,400 sqft $N/A per sqft 1 Story type