Active Under Contract MLS# 25072036

524 Jefferson Street, Staunton, IL 62088

Subdivision: P J Lukers Add

List Price: $210,900

3

Bedrooms

3

Baths

1,612

Area (sq.ft)

$131

Cost/sq.ft

1 Story

Type

51

Days on Market
Call Agent

Description

Beautifully remodeled 3 bed, 2.5 bath home with a large yard and quiet country setting. The open main living area features real hardwood floors and vaulted ceilings, with a nice view of the farm fields behind the home. The kitchen has brand new cabinets, granite countertops, and a new sink with plenty of space to work and gather. There are two good-sized bedrooms with a full bath between them, and a spacious primary suite with a walk-in closet, full bath, separate tub, and walk-in tile shower. The laundry/mudroom is right off the side entry and includes an additional half bath with tile flooring. Outside, there’s a 30x30 outbuilding with a concrete floor and overhead door, plus an extra shed for storage.

Property Information

List Price $ 210,900
Original Price $ 210,900
Status Active Under Contract
MLS# 25072036
Bedrooms 3
Full baths 2
Half baths 1
Main Floor Full Baths 2
Sq. Ft. Above 1,612
Lot Size
Acres 0
Subdivision P J Lukers Add
Municipality
School District STAUNTON DIST 6
County Macoupin-IL
Property Type Residential
Style 1 Story
Style Description
Transaction Type
Special Conditions Standard
Type
Building Exterior Amenities
Building Style Ranch
Ownership
Special Description Standard
Appliances Some

Additional Information

Elementary School STAUNTON DIST 6
Jr. High School STAUNTON DIST 6
Sr. High School Staunton
Association Fee None
Architecture Ranch
Construction Vinyl Siding
Garage Spaces 1
Carport Spaces 0
Basement Description Crawl Space
Fireplace Type
Fireplace Location
Lot Dimensions 127.46 x 142
Special Areas
Cooling Central Air,Electric
Sewer Septic Tank Sewer
Heating Forced Air
Water Public
Heat Source
Kitchen
Appliances
Dining
Interior Decor Open Floorplan
Property Tax $1,487

Map Location

Rooms Dimensions

Room Dimensions (sq.rt)
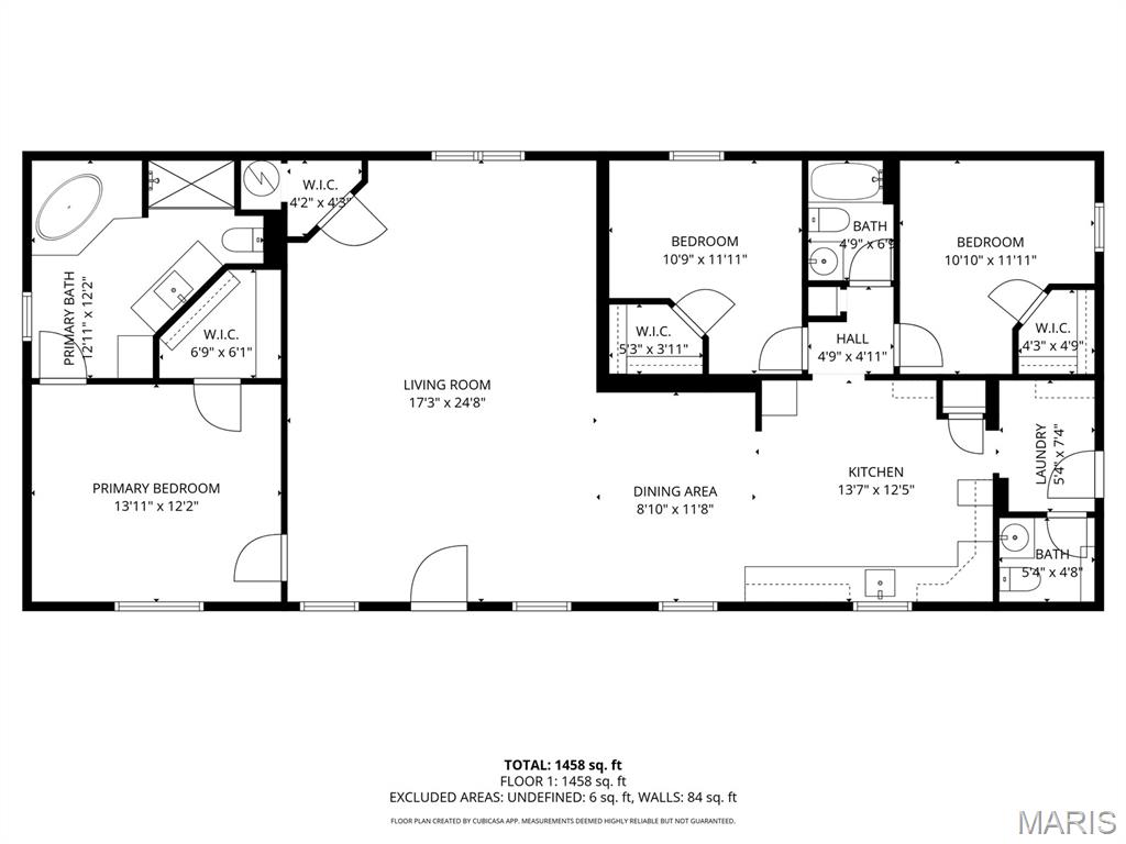
Living Room (Level-Main) 17 x 25
Kitchen (Level-Main) 12 x 12
Primary Bedroom (Level-Main) 12 x 14
Primary Bathroom (Level-Main) 10 x 14
Bedroom (Level-Main) 11 x 12
Bedroom (Level-Main) 11 x 12
Laundry (Level-Main) 6 x 7
Bathroom (Level-Main) 5 x 7
Bathroom (Level-Main) 5 x 5
Dining Room (Level-Main) 9 x 12

Listing Courtesy of RE/MAX Alliance - [email protected]